设为首页
收藏本站
所有帖子
关于我们
联系我们
微信群
开启辅助访问
搜索
搜索
本版
用户
门户
Portal
资讯
液压资讯
观点
观点
产品
液压产品
技术
液压技术
合集
导读
Guide
下载
签到
金币
论坛
BBS
登录
立即注册
腾讯QQ
账号
自动登录
找回密码
密码
登录
立即注册
只需一步,快速开始
我的
日志
记录
收藏
勋章
任务
道具
动态
设置
退出
液压圈
»
论坛
›
液压元件
›
液压泵马达
›
请教力士乐电子泵工作原理
负载敏感资料下载
|
液压培训资料下载
|
液压样本下载
|
AMESim资料下载
|
力士乐资料下载
|
挖掘机资料下载
|
标准资料下载
|
多路阀资料下载
返回列表
查看:
589
|
回复:
0
请教力士乐电子泵工作原理
[复制链接]
qqqqqqwwww
qqqqqqwwww
当前离线
积分
1816
注册时间
2013-3-31
最后登录
1970-1-1
IP卡
狗仔卡
打卡等级:论坛老炮
打卡总天数:1168
打卡总奖励:1818
发表于 2024-12-22 15:52:02
|
显示全部楼层
|
阅读模式
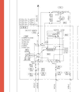
力士乐
这种电子
泵
,SYHDFEn-1X/355R,泵,它是怎么实现压力、流量、功率控制的?
回复
使用道具
举报
提升卡
置顶卡
变色卡
返回列表
高级模式
B
Color
Image
Link
Quote
Code
Smilies
您需要登录后才可以回帖
登录
|
立即注册
本版积分规则
发表回复
回帖后跳转到最后一页
浏览过的版块
液压技术
资料下载
公告区
插装阀
液压辅件
液压油缸
伺服控制
工程机械
求职招聘
快速回复
返回顶部
返回列表