设为首页
收藏本站
所有帖子
关于我们
联系我们
微信群
开启辅助访问
搜索
搜索
本版
用户
门户
Portal
资讯
液压资讯
观点
观点
产品
液压产品
技术
液压技术
合集
导读
Guide
下载
签到
金币
论坛
BBS
登录
立即注册
腾讯QQ
账号
自动登录
找回密码
密码
登录
立即注册
只需一步,快速开始
好友
动态
收藏
分享
帖子
日志
记录
相册
留言板
勋章
任务
道具
设置
退出
液压圈
»
论坛
›
液压元件
›
液压电磁阀
›
求液压阀
负载敏感资料下载
|
液压培训资料下载
|
液压样本下载
|
AMESim资料下载
|
力士乐资料下载
|
挖掘机资料下载
|
标准资料下载
|
多路阀资料下载
返回列表
查看:
282
|
回复:
1
求液压阀
[复制链接]
505878608
505878608
当前离线
积分
74
注册时间
2020-7-1
最后登录
1970-1-1
IP卡
狗仔卡
打卡等级:偶尔看看
打卡总天数:162
打卡总奖励:305
发表于 2025-12-10 13:07:07
|
显示全部楼层
|
阅读模式
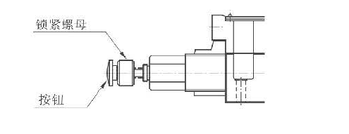
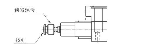
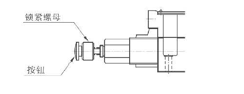
6通经
力士乐
型电磁换向阀谁家有这种带按钮锁紧型的啊?最好货期在一周内的。
回复
使用道具
举报
提升卡
置顶卡
变色卡
ztc1026
ztc1026
当前离线
积分
600
注册时间
2023-4-3
最后登录
1970-1-1
IP卡
狗仔卡
打卡等级:常驻居民
打卡总天数:553
打卡总奖励:705
发表于
3 天前
|
显示全部楼层
力士乐标准的电磁换向阀没有出过这种锁紧的强制按钮的元件。这种是日本油研产的,你可以找一下油研样本查一下
回复
使用道具
举报
返回列表
高级模式
B
Color
Image
Link
Quote
Code
Smilies
您需要登录后才可以回帖
登录
|
立即注册
本版积分规则
发表回复
回帖后跳转到最后一页
快速回复
返回顶部
返回列表