搜索
金币充值液压资料下载官方微信群
查看: 1465|回复: 22

液压缸速度无法调节

  [复制链接]
  • 打卡等级:无名新人
  • 打卡总天数:3
  • 打卡总奖励:3
发表于 2025-12-12 15:25:00 | 显示全部楼层 |阅读模式
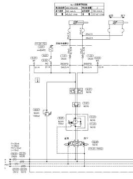
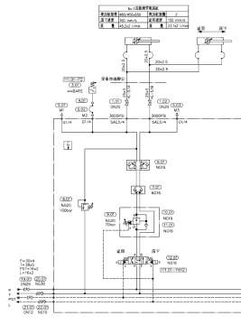
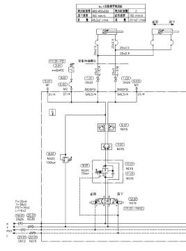
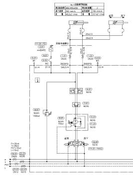
各位前辈,前几天遇到了个故障,想要了解下是什么原因,跟前辈们请教。
如图,是一个压辊的原理图,检修前一切都正常,在检修更换完油管之后,压辊抬起的速度非常快,无法调节速度,压下速度正常,无杆腔节流阀几乎完全关闭了,还是很快,来来回回动作了好几次,也把无杆腔的油管接头拆了,把液压缸收回到位,再试机速度还是很快。怀疑是有空气,但是动作了好几次,又拆了油管接头,还是不得,请教下前辈们是什么原因
微信截图_20251212151420.png
回复

使用道具 举报

  • 打卡等级:即来则安
  • 打卡总天数:223
  • 打卡总奖励:283
发表于 2025-12-12 22:57:28 | 显示全部楼层
从这个原理图来看,返回的时候,流量除了进入小腔之外,没有其他地方可以去了,所以没法调速呢。在小腔油路也设置一个8.01也许会有作用吧
回复

使用道具 举报

  • 打卡等级:即来则安
  • 打卡总天数:223
  • 打卡总奖励:283
发表于 2025-12-12 22:59:34 | 显示全部楼层
从这个原理图来看,返回时流量除了进入小腔,没有其他地方可以去呢,所以没法调速,可以在小腔进油路设置一个8.01
回复

使用道具 举报

  • 打卡等级:论坛老炮
  • 打卡总天数:937
  • 打卡总奖励:1605
发表于 2025-12-13 08:10:54 | 显示全部楼层
压下的压力是否正常,按照原理图,压力应该是70bar,看压力继电器3.01 ,或者在M1接个压力表。如果正常那就只能是节流阀的故障,节流阀是出口节流。如果压力不正常,那就有可能是溢流阀8.01的故障。
回复

使用道具 举报

  • 打卡等级:常驻居民
  • 打卡总天数:334
  • 打卡总奖励:381
发表于 2025-12-14 08:36:10 | 显示全部楼层
换个节流阀试试看
回复

使用道具 举报

  • 打卡等级:常驻居民
  • 打卡总天数:486
  • 打卡总奖励:946
发表于 2025-12-14 13:38:18 | 显示全部楼层
首先要讲明检修时有哪些动作,比如阀有没有拆下来重新安装等,其次要看运行时油缸两腔的压力显示是否正常,通过这些可以看到的数据去分析液压油的去处,应该不是空气的问题
回复

使用道具 举报

  • 打卡等级:论坛老炮
  • 打卡总天数:1341
  • 打卡总奖励:2112
发表于 2025-12-15 07:58:13 | 显示全部楼层
无杆腔的回油节流阀坏了,无法建立背压,拆开检修下,不行就换新件。
回复

使用道具 举报

  • 打卡等级:论坛老炮
  • 打卡总天数:1341
  • 打卡总奖励:2112
发表于 2025-12-15 07:59:42 | 显示全部楼层
无杆腔的回油节流坏了,回油无法建立背压,拆卸检查下,不行就换新件。
回复

使用道具 举报

  • 打卡等级:初来乍到
  • 打卡总天数:37
  • 打卡总奖励:37
发表于 2025-12-15 11:02:02 | 显示全部楼层
节流阀是不是装反了哦
回复

使用道具 举报

  • 打卡等级:无名新人
  • 打卡总天数:3
  • 打卡总奖励:3
 楼主| 发表于 2025-12-15 14:40:52 | 显示全部楼层
gywtz 发表于 2025-12-14 13:38
首先要讲明检修时有哪些动作,比如阀有没有拆下来重新安装等,其次要看运行时油缸两腔的压力显示是否正常, ...

检修更换了油管
回复

使用道具 举报

您需要登录后才可以回帖 登录 | 立即注册

本版积分规则