搜索
金币充值液压资料下载官方微信群
查看: 22980|回复: 43

插装阀油路图

  [复制链接]
  • 打卡等级:无名新人
  • 打卡总天数:1
  • 打卡总奖励:8
发表于 2013-10-30 18:45:32 | 显示全部楼层 |阅读模式
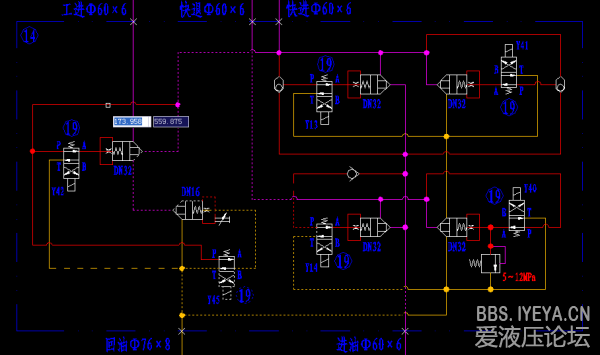
请问y13跟y41打开后,梭阀那条油路是干嘛用的?去掉有没有关系。y14上面还有个单向阀也搞不明白干嘛的,希望有人可以告诉我,谢谢。

补充内容 (2013-10-31 18:02):
我补充一下工艺,y13.通电,快进塞腔进油,杆腔通过y40通电回油,y14通电杆腔进油,塞腔通过y41回油,快进转工进的时候是y13,y42,y45(泄压阀)y40(回油)的。主油路一直会进油的。
202.png
  • 打卡等级:论坛老炮
  • 打卡总天数:1498
  • 打卡总奖励:2848
发表于 2013-10-30 20:17:49 | 显示全部楼层
是否起到停机保压只用。
回复

使用道具 举报

发表于 2013-10-30 20:36:10 | 显示全部楼层
个人理解
梭阀将快退腔和快进腔高压侧引入弹簧腔,如果取消,插装阀可能有误动作

单向阀是为了防止进油出现压力脉动的时候,插装阀误打开
回复

使用道具 举报

发表于 2013-10-30 20:38:07 | 显示全部楼层
首先,试着把你的原理图理一遍:
快进:Y13 Y40得电;
工进:Y13 Y40 Y42得电,部分压力油通过电磁节流阀DN16旁通节流;
快退:Y14 Y41得电,快推时压力油限定在5-12Mpa。
-----------------------------------------------------------------以上分割线
1  Y13 Y41为电磁梭阀盖板,目的:
当P口停止供油,可以引入"快进或者工进"侧压力油进入主插件控制腔,使插件有效锁死.
目的:当P停止供油,油缸不会因为外部负载后退.
可以简单把这个阀组简化成如图
捕获.PNG
2  y14单向阀个人以为在这里可有可无,去掉不会对系统产生什么影响.
若理解不到位,请同行指正
回复

使用道具 举报

  • 打卡等级:偶尔看看
  • 打卡总天数:78
  • 打卡总奖励:170
发表于 2013-10-30 21:39:35 | 显示全部楼层
本帖最后由 zzfjct 于 2013-10-30 21:43 编辑

梭阀是压力选择元件,在本例中的作用是不管系统进油压力或油缸工作腔压力哪个大,都能保证Y13、Y41可靠关闭。
Y14单向阀的作用是阻止Y14主插件B腔至C腔的泄漏返回已卸载的系统供油回路,即油缸非工作腔保压,虽然此时先导电磁滑阀P→T仍存在泄漏,但泄漏量比主插件低一个数量级。
回复

使用道具 举报

  • 打卡等级:偶尔看看
  • 打卡总天数:78
  • 打卡总奖励:170
发表于 2013-10-30 21:47:42 | 显示全部楼层
muzi608 发表于 2013-10-30 20:36
个人理解
梭阀将快退腔和快进腔高压侧引入弹簧腔,如果取消,插装阀可能有误动作


Y13/Y41分别是快进腔进、回油阀,与快退腔无关。
回复

使用道具 举报

  • 打卡等级:偶尔看看
  • 打卡总天数:78
  • 打卡总奖励:170
发表于 2013-10-30 21:51:39 | 显示全部楼层
本帖最后由 zzfjct 于 2013-10-30 22:18 编辑
zhangrongji85 发表于 2013-10-30 20:38
首先,试着把你的原理图理一遍:
快进:Y13 Y40得电;
工进:Y13 Y40 Y42得电,部分压力油通过电磁节流阀DN16旁 ...


除单向阀作用的结论存疑,其余结论均正确。
回复

使用道具 举报

发表于 2013-10-30 22:49:12 | 显示全部楼层
zhangrongji85 发表于 2013-10-30 20:38
首先,试着把你的原理图理一遍:
快进:Y13 Y40得电;
工进:Y13 Y40 Y42得电,部分压力油通过电磁节流阀DN16旁 ...

1、快进:Y13得电
[如楼主所说,快进时Y13、Y41都得电的话,进油口压力油会从Y41侧二通插装阀跑掉的]
2、工进:Y13、Y42、Y45得电
[如楼主所说,工进时Y13、Y40、Y42得电,实际上Y40是快退支路上的,跟工进、快进都没有关系;但如果Y45不带电的话,会泄油]
3、Y41应该是快进或者工进工况下的紧急卸荷阀(或者是行程控制阀)
4、快退:Y14得电;此时Y40得电的话,卸荷,溢流阀被屏蔽掉不起作用;如果Y40不带电,溢流阀或许工作
回复

使用道具 举报

  • 打卡等级:初来乍到
  • 打卡总天数:47
  • 打卡总奖励:199
发表于 2013-10-30 23:17:49 | 显示全部楼层
控制油可以取两路,由梭阀进行选择;单向阀去掉会有误动的,除非把控制阀换了
回复

使用道具 举报

  • 打卡等级:偶尔看看
  • 打卡总天数:124
  • 打卡总奖励:830
发表于 2013-10-31 08:48:58 | 显示全部楼层
楼主的系统,应该是一个阀吧?
回复

使用道具 举报

您需要登录后才可以回帖 登录 | 立即注册

本版积分规则