设为首页
收藏本站
所有帖子
关于我们
联系我们
微信群
开启辅助访问
搜索
搜索
本版
用户
门户
Portal
资讯
液压资讯
观点
观点
产品
液压产品
技术
液压技术
合集
导读
Guide
下载
签到
金币
论坛
BBS
登录
立即注册
腾讯QQ
账号
自动登录
找回密码
密码
登录
立即注册
只需一步,快速开始
好友
动态
收藏
分享
帖子
日志
记录
相册
留言板
勋章
任务
道具
设置
退出
液压圈
»
论坛
›
液压系统
›
工程机械
›
specification flow control manifold
负载敏感资料下载
|
液压培训资料下载
|
液压样本下载
|
AMESim资料下载
|
力士乐资料下载
|
挖掘机资料下载
|
标准资料下载
|
多路阀资料下载
返回列表
查看:
4361
|
回复:
3
[其他机械]
specification flow control manifold
[复制链接]
appleliu
appleliu
当前离线
积分
557
注册时间
2011-10-24
最后登录
1970-1-1
IP卡
狗仔卡
打卡等级:无名新人
打卡总天数:3
打卡总奖励:20
发表于 2013-5-22 16:34:41
|
显示全部楼层
|
阅读模式
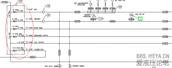
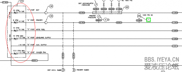
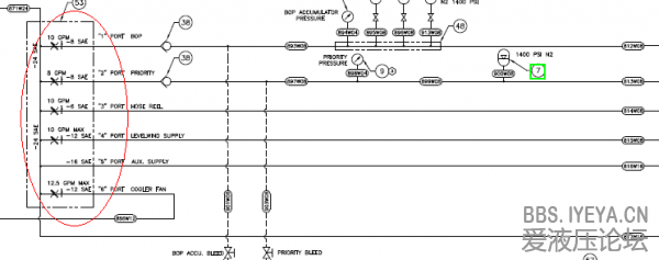
有人用到过这个东西吗?作用就是将一个
泵
的分成多条油路,每条油路能单独调节压力。原理图如图所示,上面那条是泵的来油,右边和下面总共七条油路都是分开后的油路。
control
specification flow control manifold
相关帖子
.
1D加3d联合仿真执行机构为马达
.
请问各位手头上有没有海德hydro control家的多路阀HC-EX系列的样本,不是HC-D系列的
.
oil control 全套样本
.
AMESim signal control library 中文版
.
AMEsim10为何没有mechanical 和signal,control这两个库呢?
.
求力士乐oil control全套样本
.
诚邀 液压工程师加入本公司
回复
使用道具
举报
提升卡
置顶卡
变色卡
只恋蓝黑
只恋蓝黑
当前离线
积分
41
注册时间
2011-9-24
最后登录
1970-1-1
IP卡
狗仔卡
发表于 2013-5-24 08:37:08
|
显示全部楼层
没有用过,
回复
使用道具
举报
只恋蓝黑
只恋蓝黑
当前离线
积分
41
注册时间
2011-9-24
最后登录
1970-1-1
IP卡
狗仔卡
发表于 2013-5-24 08:37:08
|
显示全部楼层
没有用过,
回复
使用道具
举报
appleliu
appleliu
当前离线
积分
557
注册时间
2011-10-24
最后登录
1970-1-1
IP卡
狗仔卡
打卡等级:无名新人
打卡总天数:3
打卡总奖励:20
楼主
|
发表于 2013-5-25 10:28:25
|
显示全部楼层
坛里这么多人都没见过和用过吗?
回复
使用道具
举报
返回列表
高级模式
B
Color
Image
Link
Quote
Code
Smilies
您需要登录后才可以回帖
登录
|
立即注册
本版积分规则
发表回复
回帖后跳转到最后一页
浏览过的版块
液压泵马达
液压技术
快速回复
返回顶部
返回列表