搜索
汉力达液压金币充值官方微信群液压资料下载
查看: 4650|回复: 5

请教两个平衡阀设定值

[复制链接]
  • 打卡等级:无名新人
  • 打卡总天数:1
  • 打卡总奖励:8
发表于 2013-5-28 10:50:13 | 显示全部楼层 |阅读模式


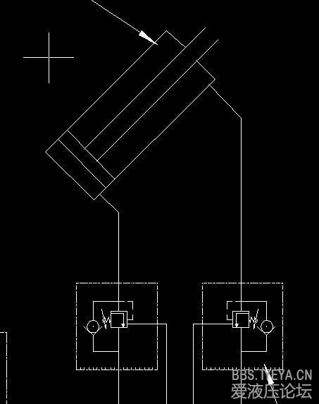
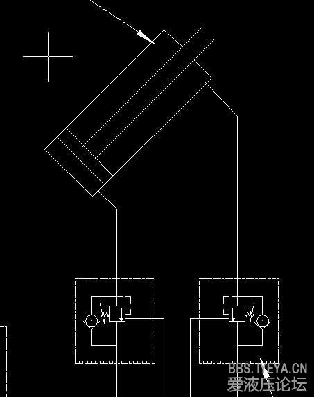
像图中这个 样子,

两个阀芯调不一样的值会比较好吧。。

比如负载超速下降时起作用的阀值应该设置的大。

而负载提升时,那个阀应该设的小。 不浪费功率
值.jpg
  • 打卡等级:无名新人
  • 打卡总天数:9
  • 打卡总奖励:50
发表于 2013-5-28 21:20:53 | 显示全部楼层
两者没有关系吧。
回复

使用道具 举报

  • 打卡等级:以坛为家
  • 打卡总天数:695
  • 打卡总奖励:1110
发表于 2013-5-29 13:37:35 | 显示全部楼层

楼主的思路是对的。
这个值的高低需要有经验的人员试验调整。
回复

使用道具 举报

  • 打卡等级:无名新人
  • 打卡总天数:1
  • 打卡总奖励:8
 楼主| 发表于 2013-5-29 14:42:50 | 显示全部楼层
海中游 发表于 2013-5-29 13:37
楼主的思路是对的。
这个值的高低需要有经验的人员试验调整。

看来您调节过??
回复

使用道具 举报

发表于 2013-6-10 20:48:39 | 显示全部楼层
楼主的思路完全正确,左边的调定值打,右边低。具体值要力学分析、计算而定。

点评

调的大,是否开启压力也需要大?调小又可能溢流,如何确定?  发表于 2013-6-12 09:43
回复

使用道具 举报

发表于 2013-9-25 16:36:17 | 显示全部楼层
当当 发表于 2013-6-10 20:48
楼主的思路完全正确,左边的调定值打,右边低。具体值要力学分析、计算而定。

左边由于要受到负载压力,所以弹簧的调定值要大些(具体要看负载重力)。对于开启压力,跟平衡阀标准的先导比(跟阀的出厂设定有关),负载压力,调定压力三者相互制约。
回复

使用道具 举报

您需要登录后才可以回帖 登录 | 立即注册

本版积分规则