- 积分
- 1952
- 注册时间
- 2013-3-31
- 最后登录
- 1970-1-1
- 打卡等级:论坛老炮
- 打卡总天数:1310
- 打卡总奖励:2065
|

楼主 |
发表于 2014-1-21 23:31:52
来自手机
|
显示全部楼层
游勇 发表于 2014-1-21 22:12
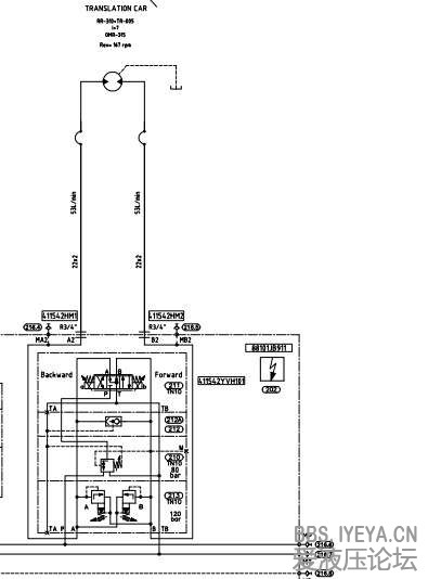
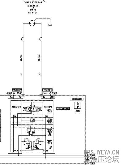
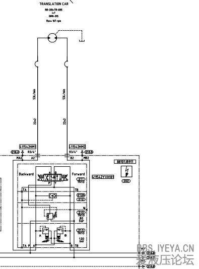
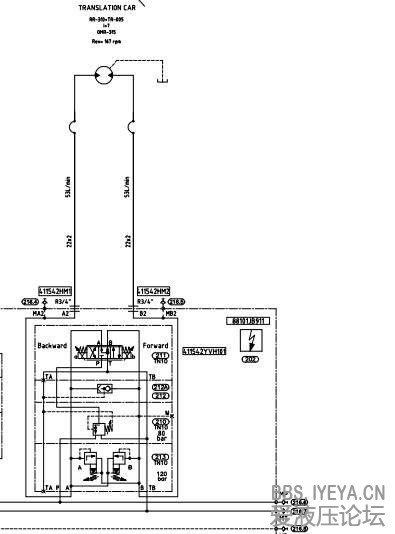
使用压力补偿来实现负载补偿
谢谢游老师!我不明白为什么定压差阀选用的是ZDR10P2即B口减压类型的,按道理应是P口减压才对。系统压力100bar,小车前进时测压点MA2为50bar,MB2为30,小车后退时MB2为50,MA2为30,从减压阀的M点测量前进和后退压力均是100,但小车停止后,MA2和MB2压力为0,测压点M为什么却是50,图中M和MB2相通,应该压力为0啊? |
|