搜索
金币充值液压资料下载官方微信群
查看: 11110|回复: 19

FHD

[复制链接]
  • 打卡等级:无名新人
  • 打卡总天数:2
  • 打卡总奖励:19
发表于 2015-6-22 03:01:19 | 显示全部楼层 |阅读模式
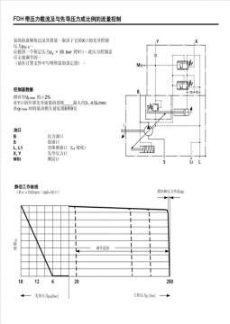
请教各位大神!y油口恒定35bar作用阀芯左端!!控制油 x在右端!这个带功率控制吗?如何控制功率?
030114sfbpbgr5rrwwvnrx.jpg
发表于 2015-6-22 06:34:07 来自手机 | 显示全部楼层
是带恒功率控制的,利用的左侧那个溢流阀实现
回复

使用道具 举报

  • 打卡等级:论坛老炮
  • 打卡总天数:1256
  • 打卡总奖励:4603
发表于 2015-6-22 09:16:49 | 显示全部楼层
您好,这款泵我一直调试,有些发言权:
1、FHD力士乐较早样本中提及的A10V柱塞泵职能,现在基本不提及了;
2、FHD流量与先导压力有关的控制,需要两个外控油。
3、此款泵源没有功率控制,仅仅是一款泵输出流量与外控压力油成正比的流量控制职能(职能图貌似与DFLR一直)---这个需要注意;
4、我们单位开发一款电比例流量控制是FHD的升级产品,目前用于开式泵控马达系统中;
谢谢!
回复

使用道具 举报

  • 打卡等级:论坛老炮
  • 打卡总天数:1256
  • 打卡总奖励:4603
发表于 2015-6-22 09:18:12 | 显示全部楼层
对不起,输入错误了:(职能图貌似与DFLR一直)是“一致”。在此纠正一下;
回复

使用道具 举报

  • 打卡等级:论坛老炮
  • 打卡总天数:1256
  • 打卡总奖励:4603
发表于 2015-6-22 09:31:53 | 显示全部楼层
力士乐较早样本成为FDH,与楼主提及的职能一样,更强调压力切断职能罢了,但是流量控制本质不变。
新建 Microsoft Publisher 文档.jpg
回复

使用道具 举报

  • 打卡等级:论坛老炮
  • 打卡总天数:1256
  • 打卡总奖励:4603
发表于 2015-6-22 09:34:18 | 显示全部楼层
如果哪位客户需要此款泵,原装或我单位生产(在此不赘述了),可以给我发信息联系我。
回复

使用道具 举报

  • 打卡等级:无名新人
  • 打卡总天数:2
  • 打卡总奖励:19
 楼主| 发表于 2015-6-22 12:10:11 | 显示全部楼层
静静等待 发表于 2015-6-22 06:34
是带恒功率控制的,利用的左侧那个溢流阀实现

但是左侧恒定控制压力35bar。x口即使控制压力加大!左侧的压力还是不变的?怎么实现功率控制呢??
回复

使用道具 举报

  • 打卡等级:无名新人
  • 打卡总天数:2
  • 打卡总奖励:19
 楼主| 发表于 2015-6-22 12:11:25 | 显示全部楼层
xwy@home 发表于 2015-6-22 09:16
您好,这款泵我一直调试,有些发言权:
1、FHD力士乐较早样本中提及的A10V柱塞泵职能,现在基本不提及了; ...

求教左侧溢流阀作用?难道只是为了恒定y口控制压力?
回复

使用道具 举报

  • 打卡等级:初来乍到
  • 打卡总天数:32
  • 打卡总奖励:234
发表于 2015-6-22 15:14:31 | 显示全部楼层
伺服活塞有个位移-力反馈,从而改变溢流阀溢流压力,直到此压力与X侧压力+弹簧预紧力形成平衡,伺服活塞才不会继续左移。也就是说Y给定的虽然是定值,但那只是节流孔之前是定值,节流孔之后压力是由溢流阀定的。X压力越高,溢流阀的压力也比较高就能平衡变量阀了,也就是说此时溢流阀的弹簧需要压得紧,即伺服活塞需要走的越少。所以泵的偏心率比较大,流量比较大。即流量与X压力成正比。
回复

使用道具 举报

  • 打卡等级:论坛老炮
  • 打卡总天数:1256
  • 打卡总奖励:4603
发表于 2015-6-22 17:16:03 | 显示全部楼层
bai3116921 发表于 2015-6-22 12:11
求教左侧溢流阀作用?难道只是为了恒定y口控制压力?

您好:
1、那个溢流阀--变量缸行程反馈机构,保证变量过程稳定性;
2、溢流阀调整保证了外控压力油Y处控制压力油的恒定30~35bar;
回复

使用道具 举报

您需要登录后才可以回帖 登录 | 立即注册

本版积分规则