搜索
汉力达液压金币充值官方微信群液压资料下载
查看: 8571|回复: 6

大侠帮忙看下这个原理图蓄能器冲多少压氮气

  [复制链接]
  • 打卡等级:无名新人
  • 打卡总天数:2
  • 打卡总奖励:12
发表于 2016-6-2 10:58:25 | 显示全部楼层 |阅读模式

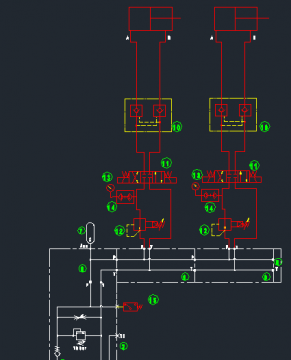
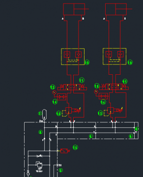
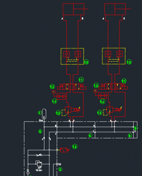
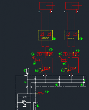
大侠帮忙看下这个原理图蓄能器冲多少压氮气

大侠帮忙看下这个原理图蓄能器冲多少压氮气

大家帮我看下,图中12是减压阀,减压压力是3.5Mpa,系统压力传感器设置是5-8Mpa,请问下这个蓄能器充几Mpa氮气,同时我这个压力传感器设置范围对吗,大家帮忙看看,这是机床加紧用的液压系统,谢谢了。
  • 打卡等级:常驻居民
  • 打卡总天数:336
  • 打卡总奖励:944
发表于 2016-6-2 14:45:32 | 显示全部楼层
按图示,蓄能器预冲压力3MPa左右。
回复

使用道具 举报

  • 打卡等级:以坛为家
  • 打卡总天数:776
  • 打卡总奖励:3041
发表于 2016-6-2 18:04:02 | 显示全部楼层
图中12减压阀是怎么工作的?请教……
回复

使用道具 举报

  • 打卡等级:无名新人
  • 打卡总天数:1
  • 打卡总奖励:4
发表于 2016-6-2 21:05:50 | 显示全部楼层
本帖最后由 莫宇恩 于 2016-6-2 21:07 编辑

还有这图画的。12画成溢流阀了吧   
回复

使用道具 举报

  • 打卡等级:无名新人
  • 打卡总天数:1
  • 打卡总奖励:4
发表于 2016-6-2 21:08:22 | 显示全部楼层
应该是在6Mpa左右吧
回复

使用道具 举报

  • 打卡等级:无名新人
  • 打卡总天数:2
  • 打卡总奖励:12
 楼主| 发表于 2016-6-3 18:55:12 | 显示全部楼层
莫宇恩 发表于 2016-6-2 21:08
应该是在6Mpa左右吧

不好意思,画错了,能请教下这个是怎么计算的
回复

使用道具 举报

  • 打卡等级:无名新人
  • 打卡总天数:1
  • 打卡总奖励:4
发表于 2016-6-4 09:30:43 | 显示全部楼层
menusky 发表于 2016-6-3 18:55
不好意思,画错了,能请教下这个是怎么计算的

系统压力百分八十左右
回复

使用道具 举报

您需要登录后才可以回帖 登录 | 立即注册

本版积分规则