设为首页
收藏本站
所有帖子
关于我们
联系我们
微信群
开启辅助访问
搜索
搜索
本版
用户
门户
Portal
资讯
液压资讯
观点
观点
产品
液压产品
技术
液压技术
合集
导读
Guide
下载
签到
金币
论坛
BBS
登录
立即注册
腾讯QQ
账号
自动登录
找回密码
密码
登录
立即注册
只需一步,快速开始
好友
动态
收藏
分享
帖子
日志
记录
相册
留言板
勋章
任务
道具
设置
退出
液压圈
»
论坛
›
液压元件
›
液压油缸
›
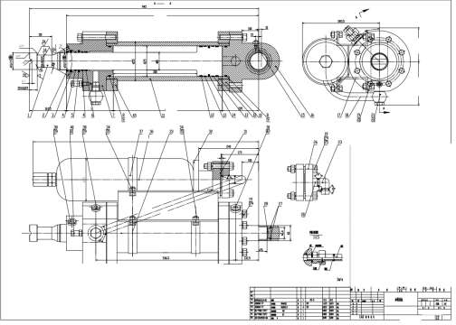
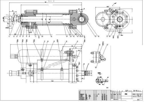
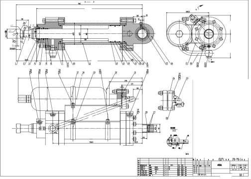
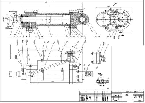
一种带蓄能器的油缸
负载敏感资料下载
|
液压培训资料下载
|
液压样本下载
|
AMESim资料下载
|
力士乐资料下载
|
挖掘机资料下载
|
标准资料下载
|
多路阀资料下载
返回列表
查看:
1734
|
回复:
6
一种带蓄能器的油缸
[复制链接]
吴鹏888
吴鹏888
当前离线
积分
14
注册时间
2025-4-10
最后登录
1970-1-1
IP卡
狗仔卡
发表于 2025-4-10 09:10:08
|
显示全部楼层
|
阅读模式
各位大佬有认识的吗?有做这种
油缸
的吗?
回复
使用道具
举报
提升卡
置顶卡
变色卡
ludongyan6810
ludongyan6810
当前离线
积分
285
注册时间
2020-7-25
最后登录
1970-1-1
IP卡
狗仔卡
打卡等级:即来则安
打卡总天数:298
打卡总奖励:411
发表于 2025-4-12 10:08:05
|
显示全部楼层
这种油缸都是非标的,往往用于缓冲或防坠落使用,当然也会有其它应用。
回复
使用道具
举报
bobayy
bobayy
当前离线
积分
111
注册时间
2010-10-4
最后登录
1970-1-1
IP卡
狗仔卡
打卡等级:无名新人
打卡总天数:28
打卡总奖励:70
发表于 2025-4-13 10:06:28
|
显示全部楼层
没啥难的,可以做。
回复
使用道具
举报
愉悦的心
愉悦的心
当前离线
积分
66
注册时间
2017-2-21
最后登录
1970-1-1
IP卡
狗仔卡
发表于 2025-4-14 15:38:18
来自手机
|
显示全部楼层
带蓄能器的油缸我公司能做,
无锡市潇湘液压工业有限公司,彭礼佑,电话/微信18352830258
回复
使用道具
举报
jim720304
jim720304
当前离线
积分
746
注册时间
2023-12-20
最后登录
1970-1-1
IP卡
狗仔卡
打卡等级:以坛为家
打卡总天数:732
打卡总奖励:1212
发表于 2025-5-25 10:02:53
|
显示全部楼层
这种油缸结构不是很简单嘛!当无杆腔压降的时候,由有杆腔蓄能器进行补偿压力,保证油缸的拉力
!
回复
使用道具
举报
jim720304
jim720304
当前离线
积分
746
注册时间
2023-12-20
最后登录
1970-1-1
IP卡
狗仔卡
打卡等级:以坛为家
打卡总天数:732
打卡总奖励:1212
发表于 2025-5-25 10:03:44
|
显示全部楼层
这个油缸结构相对来说还是比较简单的
回复
使用道具
举报
清风盼月
清风盼月
当前离线
积分
597
注册时间
2018-3-22
最后登录
1970-1-1
IP卡
狗仔卡
打卡等级:常驻居民
打卡总天数:323
打卡总奖励:370
发表于 2025-6-24 14:30:30
|
显示全部楼层
见钢厂用过这种油缸
回复
使用道具
举报
返回列表
高级模式
B
Color
Image
Link
Quote
Code
Smilies
您需要登录后才可以回帖
登录
|
立即注册
本版积分规则
发表回复
回帖后跳转到最后一页
浏览过的版块
工程机械
测试技术
AMESim
液压电磁阀
插装阀
快速回复
返回顶部
返回列表