搜索
汉力达液压金币充值官方微信群液压资料下载
查看: 4059|回复: 5

新手仿真,问题多多,望大神指教一二,不胜感激

[复制链接]
发表于 2015-1-31 00:21:11 | 显示全部楼层 |阅读模式
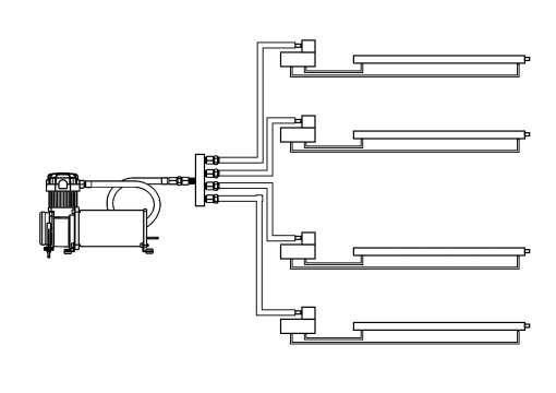
由于模型需要,想做一个气动的简单系统,用AMESim建模的时候有种无从下手的感觉,好多模块都不会用,全英文的还只能一点点的猜测或者百度。勉强安装构思画了一个图,还不知道是不是对的(压缩机那块画的好简洁,不知行不行,还有后面一个压缩机同时给4个气缸供气,也不知行不行,最郁闷的是在网上找的是二位五通的电磁阀,在10版里没有这个模块,只好换了一个三位四通的),现在问题来了,仿真的时候不会设置参数,特别是电磁阀的参数,头都大了。我是个完完全全的门外汉啊,入门好辛苦,请各位大神伸伸援手,拉我一把{:8_267:}

新手仿真,问题多多,望大神指教一二,不胜感激

新手仿真,问题多多,望大神指教一二,不胜感激

新手仿真,问题多多,望大神指教一二,不胜感激

新手仿真,问题多多,望大神指教一二,不胜感激
  • 打卡等级:常驻居民
  • 打卡总天数:365
  • 打卡总奖励:2062
发表于 2015-1-31 15:06:49 | 显示全部楼层
AMESim优秀资料索引帖(更新中)https://www.iyeya.cn/thread-22262-1-1.html,把这个学习索引帖的内容好好看看,学习一下!
回复

使用道具 举报

  • 打卡等级:无名新人
  • 打卡总天数:22
  • 打卡总奖励:80
发表于 2015-1-31 18:28:34 | 显示全部楼层
泵出口怎么没单向阀溢流阀
回复

使用道具 举报

  • 打卡等级:无名新人
  • 打卡总天数:19
  • 打卡总奖励:131
发表于 2015-2-1 21:51:44 | 显示全部楼层
同为新手,有什么建议可以分享一下啊
回复

使用道具 举报

  • 打卡等级:偶尔看看
  • 打卡总天数:68
  • 打卡总奖励:478
发表于 2015-2-5 10:13:35 | 显示全部楼层
这个我也是不很清除啊
回复

使用道具 举报

发表于 2015-2-5 19:21:33 来自手机 | 显示全部楼层
先在纸上画出来,然后在纸上分析下工作原理,上来就开软件肯定会没思路
回复

使用道具 举报

您需要登录后才可以回帖 登录 | 立即注册

本版积分规则