搜索
汉力达液压金币充值官方微信群液压资料下载
查看: 16820|回复: 20

请教A4VSO高压泵的DRG和DR两种控制方式的区别

  [复制链接]
  • 打卡等级:无名新人
  • 打卡总天数:1
  • 打卡总奖励:10
发表于 2015-4-17 20:02:42 | 显示全部楼层 |阅读模式
我厂一共有三台连铸机,1.2#中心液压室采用的A4VSO 180DRG控制的高压,但是在3#中心液压室采用的A4VSO 180DR控制的高压泵,1.2#液压室97年就投产使用的,3#液压室室2007年投产使用的,3个中心液压室的液压系统大致一样,使用的高压泵都是一个型号,就是高压泵的控制方式不一样,现在想请教一下DRG和DR两种控制方式有什么区别啊,难道就是一个远程控制的区别吗,既然DR能实现恒压变量,为什么还要使用DRG的方式来变量,实在没搞明白,还请大家给我帮我解惑,再次谢谢了,知道这里高手很多,我是个新手,还有很多要学习的地方,如果问题问的不对还请大家见谅,我会虚心学习的,再次感谢大家!!!
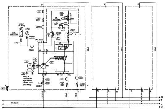
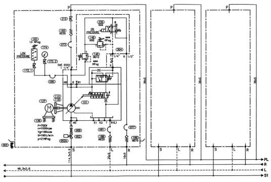
下面使我们高压泵的原理图

请教A4VSO高压泵的DRG和DR两种控制方式的区别

请教A4VSO高压泵的DRG和DR两种控制方式的区别


  • 打卡等级:无名新人
  • 打卡总天数:1
  • 打卡总奖励:10
 楼主| 发表于 2015-4-17 20:06:49 | 显示全部楼层
DR:压力切断控制,当输出压力超过某设定值时,使泵的流量自动减少为最小的一种控制方式。
回复

使用道具 举报

  • 打卡等级:无名新人
  • 打卡总天数:1
  • 打卡总奖励:10
 楼主| 发表于 2015-4-17 20:08:48 | 显示全部楼层
DRG:远程压力控制,在DR控制基础上,从图示黄色油路外借远程控制油,用该远程控制油控制滑阀弹簧设定值。
这个是我在论坛看到的 DR我基本可以理解,但是DRG这种控制是为了什么不是很明白,难道是因为DRG能够在更高的压力上实现恒压变量控制吗?不知道我说的对不对
回复

使用道具 举报

  • 打卡等级:无名新人
  • 打卡总天数:1
  • 打卡总奖励:10
 楼主| 发表于 2015-4-17 22:38:54 | 显示全部楼层
自己顶一下 睡觉了
回复

使用道具 举报

  • 打卡等级:初来乍到
  • 打卡总天数:41
  • 打卡总奖励:188
发表于 2015-4-17 23:00:27 | 显示全部楼层
就是一个加了遥控阀一个没有遥控阀吧  都是恒压变量功能
回复

使用道具 举报

  • 打卡等级:即来则安
  • 打卡总天数:236
  • 打卡总奖励:1098
发表于 2015-4-17 23:07:04 | 显示全部楼层
对这泵不熟,好像就外控口多加了个远程调压的溢流阀。
回复

使用道具 举报

  • 打卡等级:即来则安
  • 打卡总天数:236
  • 打卡总奖励:1098
发表于 2015-4-17 23:07:05 | 显示全部楼层
对这泵不熟,好像就外控口多加了个远程调压的溢流阀。
回复

使用道具 举报

  • 打卡等级:无名新人
  • 打卡总天数:1
  • 打卡总奖励:10
 楼主| 发表于 2015-4-18 07:02:34 来自手机 | 显示全部楼层
远程调压有什么意义啊
回复

使用道具 举报

  • 打卡等级:无名新人
  • 打卡总天数:1
  • 打卡总奖励:10
 楼主| 发表于 2015-4-18 07:03:42 来自手机 | 显示全部楼层
阀都在泵头上,好像起不到远程的作用
回复

使用道具 举报

  • 打卡等级:无名新人
  • 打卡总天数:14
  • 打卡总奖励:14
发表于 2015-4-18 18:05:50 | 显示全部楼层
yi0340 发表于 2015-4-18 07:03
阀都在泵头上,好像起不到远程的作用

148可以布置在较远的地方,称之为远程调压。或148为比例溢流阀,用电气实现远程调压
回复

使用道具 举报

您需要登录后才可以回帖 登录 | 立即注册

本版积分规则