搜索
汉力达液压金币充值官方微信群液压资料下载
查看: 10328|回复: 17

请各位高手指点一下这个主阀原理

  [复制链接]
发表于 2013-5-8 10:10:00 | 显示全部楼层 |阅读模式
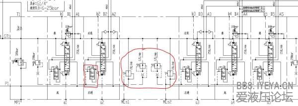
图中红色框里的部分分别起什么作用啊?
捕获.JPG
  • 打卡等级:无名新人
  • 打卡总天数:3
  • 打卡总奖励:4
发表于 2013-5-8 10:29:30 | 显示全部楼层
这应该是力士乐的M7多路阀,左边的那个阀是一个压力补偿阀,具体作用,你可以看力士乐样本。P口那两个定差减压阀是当没动作时(即Ls没有压力时)给泵低压卸荷的;Ls那两个阀,是在阀停止工作时,这里的通道负责把残余在LS通道里的压力释放掉,避免泵维持在高压状态。工作时,也能顺利地建立起LS的通道压力,希望对你有用

评分

参与人数 1金钱 +5 收起 理由
液压哥 + 5

查看全部评分

回复

使用道具 举报

  • 打卡等级:无名新人
  • 打卡总天数:1
  • 打卡总奖励:4
发表于 2013-5-8 13:53:27 | 显示全部楼层
1.P口的三通溢流阀固然能起到如楼上所说的作用,但其主要作用是构成定量泵的负载敏感系统;
2.至于LS上的定差减压阀,没想太明白,如果只是起停车时让LS油路内的油流出,直接用一个小阻尼不行吗,为什么还要用个定差减压阀?
3,另外能请楼主告诉下这个定差阀的设定压力是多少,及阻尼的大小吗?感谢!

点评

不用阻尼的原因是阻尼的泄油量受工作压力形响。而这个不是定差阀,是小型的恒流量阀。  发表于 2013-5-9 00:33
回复

使用道具 举报

 楼主| 发表于 2013-5-8 14:15:08 | 显示全部楼层
kauuka 发表于 2013-5-8 13:53
1.P口的三通溢流阀固然能起到如楼上所说的作用,但其主要作用是构成定量泵的负载敏感系统;
2.至于LS上的定 ...

哪个定差减压阀?我没看到有定差减压阀啊
回复

使用道具 举报

发表于 2013-5-8 21:40:31 | 显示全部楼层
定差减压阀就是你图里画的那个圈啊
回复

使用道具 举报

 楼主| 发表于 2013-5-8 21:52:08 | 显示全部楼层
刺客11号 发表于 2013-5-8 21:40
定差减压阀就是你图里画的那个圈啊

哦,是右面圈里的吧?在这个主阀里起什么作用的?
回复

使用道具 举报

  • 打卡等级:无名新人
  • 打卡总天数:1
  • 打卡总奖励:4
发表于 2013-5-9 14:18:43 | 显示全部楼层
请问下游勇版主,此处这个恒流量阀是起什么作用啊?
如果此处恒流量阀只是起停车时给LS油路提供卸油通道,只用阻尼完全可以吧;
如果此处恒流量阀是起运动过程中,通过旁通阻尼削弱LS上的压力波动,好像也是只用阻尼好吧?
回复

使用道具 举报

  • 打卡等级:无名新人
  • 打卡总天数:2
  • 打卡总奖励:4
发表于 2013-5-9 20:27:40 | 显示全部楼层
中间那个是流量稳定器,在负载反馈时起流量稳定的作用的,停止工作时也具有卸压作用。
回复

使用道具 举报

  • 打卡等级:无名新人
  • 打卡总天数:11
  • 打卡总奖励:60
发表于 2013-11-16 11:38:14 | 显示全部楼层
赞成游勇侠的看法。。
回复

使用道具 举报

  • 打卡等级:论坛老炮
  • 打卡总天数:1065
  • 打卡总奖励:1698
发表于 2013-12-2 22:31:43 | 显示全部楼层
左边的压力补偿阀,右边的我们叫流量稳定器,用于定差溢流阀起压
回复

使用道具 举报

您需要登录后才可以回帖 登录 | 立即注册

本版积分规则